衣柜接料装置图纸怎么看,衣柜接料装置图纸解析与制作概述
你有没有想过,家里的衣柜里那些整齐划一的衣物是如何被妥善存放的?这其中,衣柜接料装置可是功不可没的小帮手呢!今天,就让我带你一起揭开衣柜接料装置图纸的神秘面纱,让你也能成为家居装修的小行家!
一、认识衣柜接料装置

衣柜接料装置,顾名思义,就是连接衣柜主体和衣柜抽屉的部件。它通常由金属或塑料制成,具有承重、固定、滑动等功能。有了它,你的衣柜才能像变形金刚一样,灵活多变,满足各种收纳需求。
二、衣柜接料装置图纸的解读

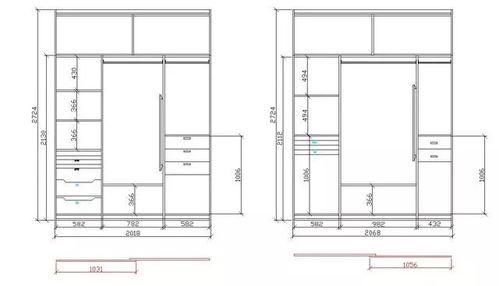
1. 尺寸标注

图纸上的尺寸标注是至关重要的。它告诉我们接料装置的长度、宽度、高度以及各个部件之间的距离。在选购接料装置时,一定要确保尺寸与你的衣柜相匹配。
2. 部件名称
图纸上的每个部件都有其特定的名称,如滑轨、导轨、固定件等。了解这些名称有助于你在购买时准确选择所需部件。
3. 安装方式
图纸会详细展示接料装置的安装方式。通常包括以下几种:
- 固定式:将接料装置直接固定在衣柜侧板上。
- 滑动式:接料装置通过滑轨与衣柜侧板连接,实现滑动功能。
- 折叠式:接料装置可折叠,节省空间。
4. 材料选择
图纸中会标注接料装置的材料,如金属、塑料等。选择合适的材料,既能保证接料装置的耐用性,又能提升衣柜的整体美观度。
三、如何看懂衣柜接料装置图纸
1. 熟悉图纸符号
图纸中会使用各种符号来表示不同的部件和安装方式。在解读图纸之前,先熟悉这些符号的含义,有助于你更快地理解图纸内容。
2. 仔细观察细节
图纸上的细节往往决定了接料装置的安装效果。仔细观察图纸,确保每个部件的位置和尺寸都准确无误。
3. 结合实际操作
在解读图纸的过程中,可以结合实际操作进行验证。例如,在安装接料装置时,可以参照图纸上的指示,确保每个部件都安装到位。
四、选购衣柜接料装置的注意事项
1. 品牌选择
选择知名品牌的接料装置,质量更有保障。在选购时,可以参考其他消费者的评价和推荐。
2. 材质选择
根据个人喜好和预算,选择合适的材质。一般来说,金属材质的接料装置耐用性更强,而塑料材质的则更加轻便。
3. 尺寸匹配
在选购接料装置时,一定要确保尺寸与你的衣柜相匹配。否则,安装后可能会出现不协调的情况。
通过以上内容,相信你已经对衣柜接料装置图纸有了更深入的了解。在今后的家居装修中,你也能轻松应对各种接料装置的选购和安装。让我们一起打造一个既美观又实用的衣柜吧!